

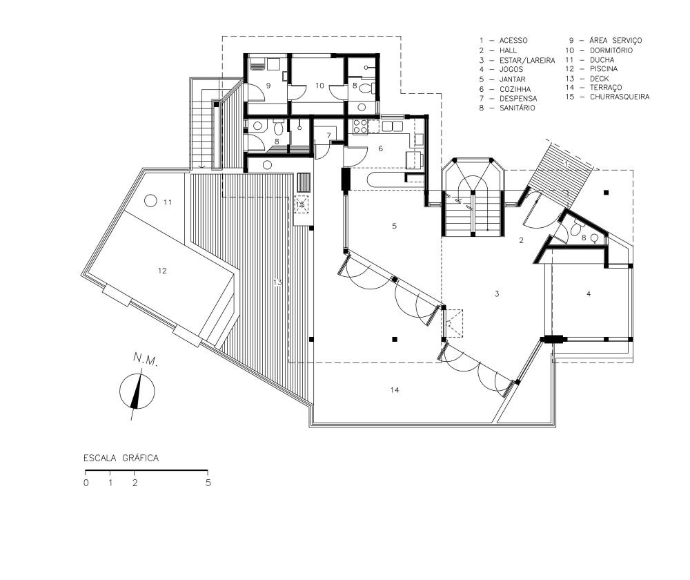
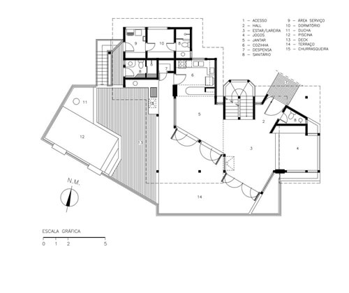
Situada a apenas 300 da praia e a 120 metros de altitude, na Serra do Mar, esta bela casa está localizada em um lugar especial. A utilização de materiais naturais integra a residência com seu entorno, e a transparência das salas promove excelentes vistas para a praia, as montanhas e a floresta.
A residência tira proveito de sua localização neste ambiente, para permanecer fresca e ventilada durante o verão, e quente e ameno durante o inverno.
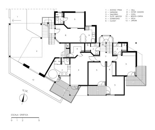
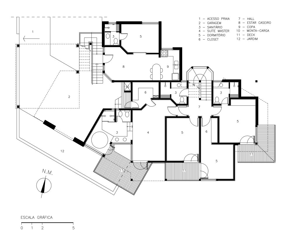
O declive acentuado do terreno permite a utilização de plataformas no desenho para absoluta privacidade do nível rebaixado dos dormitórios e dispõe para a suíte master, com vista para a praia, uma integração íntima com o ambiente.
A área comum no nível superior favorece a vista da paisagem através do topo das copas das árvores da Floresta Atlântica e direta para o mar.
O piso aberto do mezanino, que se une à área comum, permite ao proprietário, um consultor internacional, uma surpreendente vista com a calma e a paz necessária para seu trabalho.
Nelson Dupré utilizou materiais naturais como madeira, pedra, terra, e especialmente vidro, para integrar a residência com o ambiente natural do entorno e com o jardim, que preserva a
locação original das árvores.
Publicação em:
HAIDAR, Sylvia. BEACH HOUSES OF SOUTH AMERICA. Images Publishing, Australia, 2003.