

A proposta pretende criar uma identidade visual entre os vários blocos deste complexo e deles com outras unidades da instituição através da definição clara entre o objeto restaurado e o conjunto edificado adjacente, evidenciado pelos seus volumes, blocos “envelopados” por materiais únicos, como o vidro ou chapas de aço, perfurados ou não. Tem como partido a preservação e valorização arquitetônica do conjunto inicial, com a inserção de novos elementos – quando necessários – fundamentados na leitura crítica da obra e respeitando as características originais do complexo, projeto do Arq. Rino Levi de 1947.
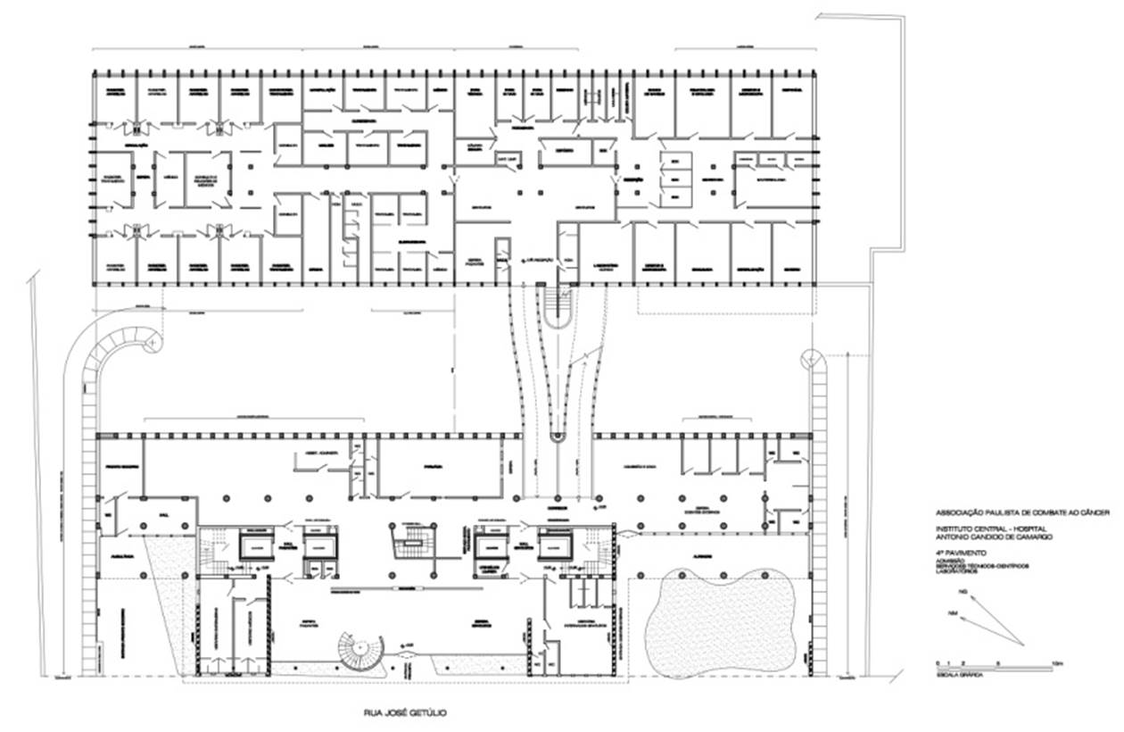
Assim, o projeto é composto pela restauração das fachadas dos blocos A, C e D (objetos do tombamento), resgatando a imagem inicial do conjunto, e pelo redesenho das fachadas do bloco B e das circulações/ligações com o bloco A e a criação de um novo volume para a circulação vertical na fachada leste bloco A.
Para o restauro dos blocos A, C e D, está prevista a demolição de alguns acréscimos posteriores localizados no térreo do Bloco A, retomando a volumetria original do edifício. Igualmente os acréscimos localizados entre o bloco A e C serão retirados e as rampas de ligação entre estes dois edifícios será restaurada; esta área receberá uma cobertura de vidro.
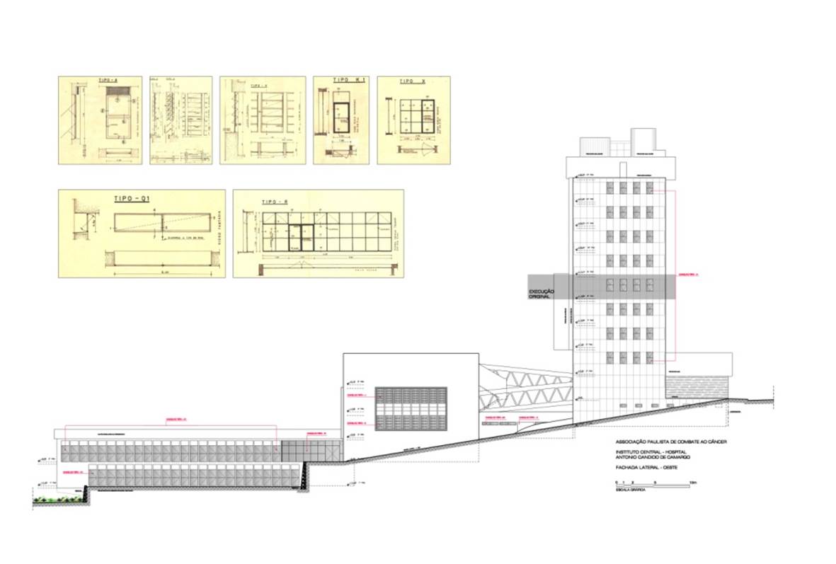
As fachadas serão restauradas, com a retirada dos aparelhos de ar condicionado e com a recuperação das tipologias das esquadrias seguindo o projeto original, porém sem as persianas de madeira – fachada norte dos Blocos A e C – serão substituídas por vidro duplo com persianas, de modo a garantir a eficiência acústica e isolamento térmico.
O ático deste bloco receberá um avanço no perímetro externo de 1,25 e novo fechamento de venezianas.
O bloco B receberá novo desenho de fachada, em linguagem contemporânea – fechamento de placas metálicas perfuradas e vidro – e harmônica com a fachada histórica vizinha.
Tal linguagem contemporânea será mantida na ligação entre dois blocos, no átrio e na nova caixa de elevadores localizada na fachada lateral leste do Bloco A, esta executada em concreto aparente e vidro. As fachadas norte e sul do bloco C Serão recompostas, com o rebaixamento das antigas aberturas das fachadas, resgatando sua aparência original.