

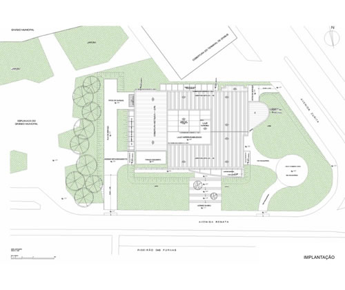
A realização do Museu do Açúcar e do Álcool no Município de Araras tinha como proposta o resgate de uma cultura que começou com os primeiros povoadores do Brasil e, ainda hoje, permanece sendo uma das principais fontes de riquezas: com esse museu buscava-se contextualizar a importância da cana-de-açúcar para o Brasil.
O projeto visava a estruturação museológica e museográfica do tema no contexto da região do Estado de São Paulo e especialmente da cidade de Araras.
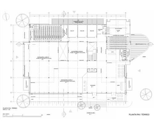
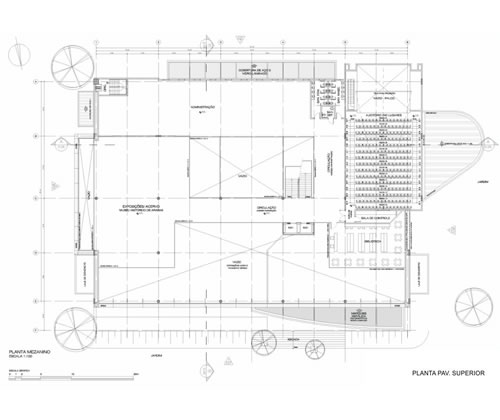
O museu foi pensado de forma dinâmica introduzindo uma abordagem tecnológica para a difusão das conquistas do setor, criando-se espaços de interatividade para os visitantes.
O programa também contemplava reavivar os aspectos históricos e culturais do setor fornecendo elementos relevantes para a política cultural do município centrado neste equipamento.
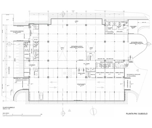
Compondo o programa do museu, além dos espaços expositivos, um auditório, uma biblioteca e um espaço gastronômico e de venda de produtos que tenham por base a matéria-prima açúcar, completavam o edifício.