CONVENTO DA PONTÍFICA UNIVERSIDADE CATÓLICA DE SÃO PAULO

Localização: São Paulo Cliente:

PUC – Pontífica Universidade Católica Ano: 2005 – atual

Restauração: Arq. Maria Luiza Dutra


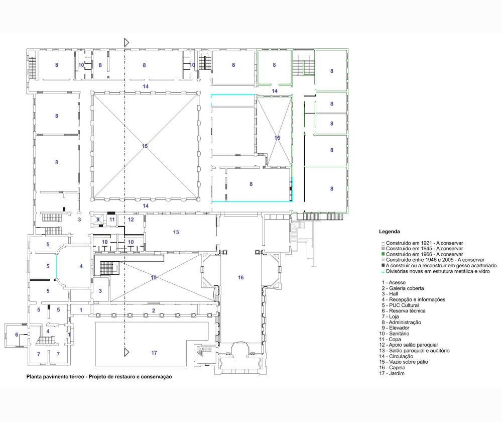
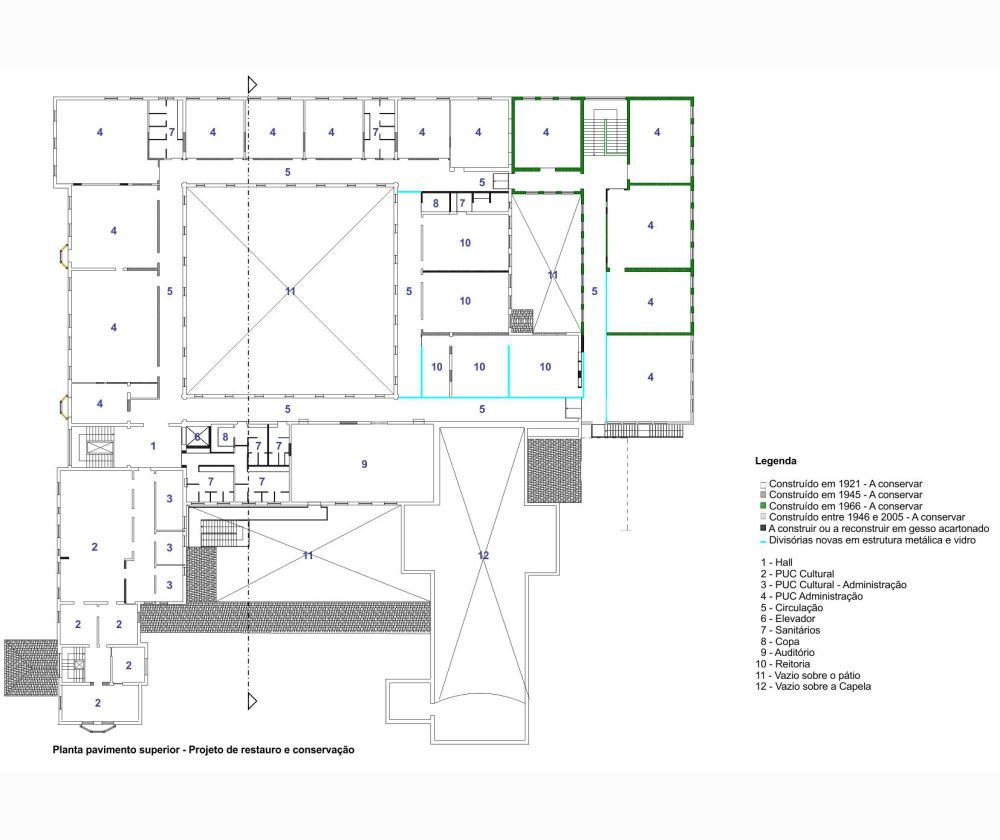
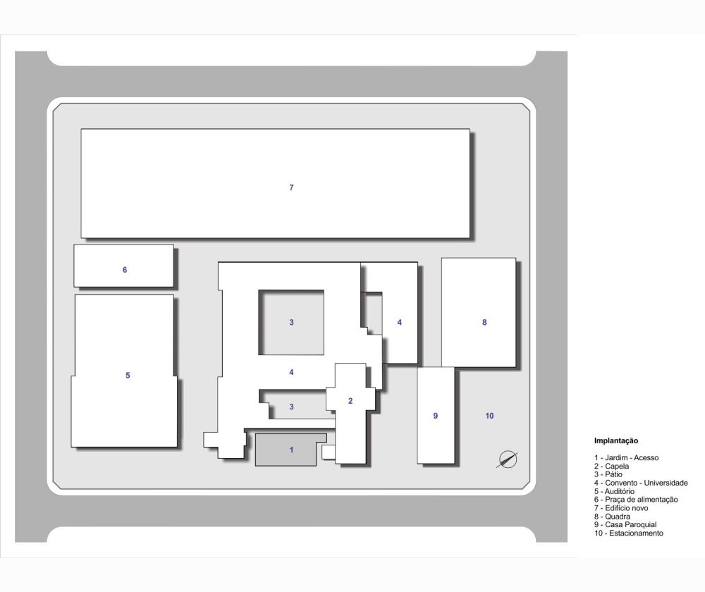
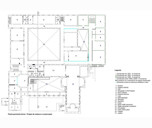
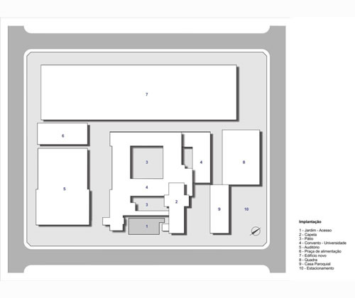
O projeto do Convento da PUC foi elaborado em 1921 pelo arquiteto Alexandre Albuquerque para um terreno de elevado declive, em área bucólica do bairro das Perdizes.


A construção neocolonial reflete o movimento nacionalista do início do século XX, que buscava a valorização e a definição de uma cultura tida como brasileira. Em 1945, o edifício considerado muito grande para abrigar 21 irmãs Carmelitas, foi destinado para abrigar a Pontifícia Universidade Católica de São Paulo e sofre, então, sua primeira intervenção, buscando adaptar as instalações conventuais ao uso acadêmico. Em 1966, nova intervenção agrega mais uma área ao edifício.


O projeto de restauro em fase de desenvolvimento pela Dupré Arquitetura propõe a recuperação do edifício, mantendo o uso universitário, todavia, dotando-o de condições tecnológicas adequadas aos novos tempos, resgatando os elementos artísticos e características da edificação original, instalando novos elementos que tornarão o espaço mais confortável e adaptado às necessidades pedagógicas contemporâneas.


  • Convento da PUC
  • Convento da PUC
  • Convento da PUC
  • Convento da PUC
  • Convento da PUC
  • Convento da PUC
  • Convento da PUC
  • Convento da PUC
  • Convento da PUC
  • Convento da PUC
Compartilhe no Facebook
Envie-nos um E-mail