

Localização: Higienópolis, São Paulo - SP
Cliente: Iate Clube de Santos
Ano: 2008 – atual
Restauração: Arq. Maria Luiza Dutra
Fotos: Boby Pirovics; Marco Yamin
A Antiga Residência de Dona Veridiana Prado, concebida em meados de 1880, constitui um marco histórico na cidade de São Paulo por ser o primeiro palacete construído na cidade.
Em 2008, o Iate Clube de Santos tornou-se proprietário da edificação, e desde então, buscando modernizar a edificação, constatou a necessidade de também restaurar o edifício.
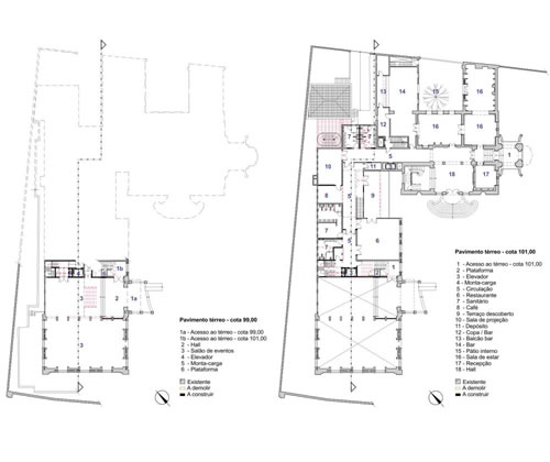
Tendo em vista a reconstituição da residência original e a implantação do Centro Cultural Dna. Veridiana, o projeto de arquitetura busca restituir as qualidades físicas e estéticas perdidas ao longo dos anos e ressaltar as diferenças entre a arquitetura preexistente e a nova, além de estabelecer formas e medidas preventivas para manutenção e conservação futuras.