

Localização: São Paulo – SP
Cliente: PUC – Pontífica Universidade Católica
Ano: 2002 – 2010 (execução parcial)
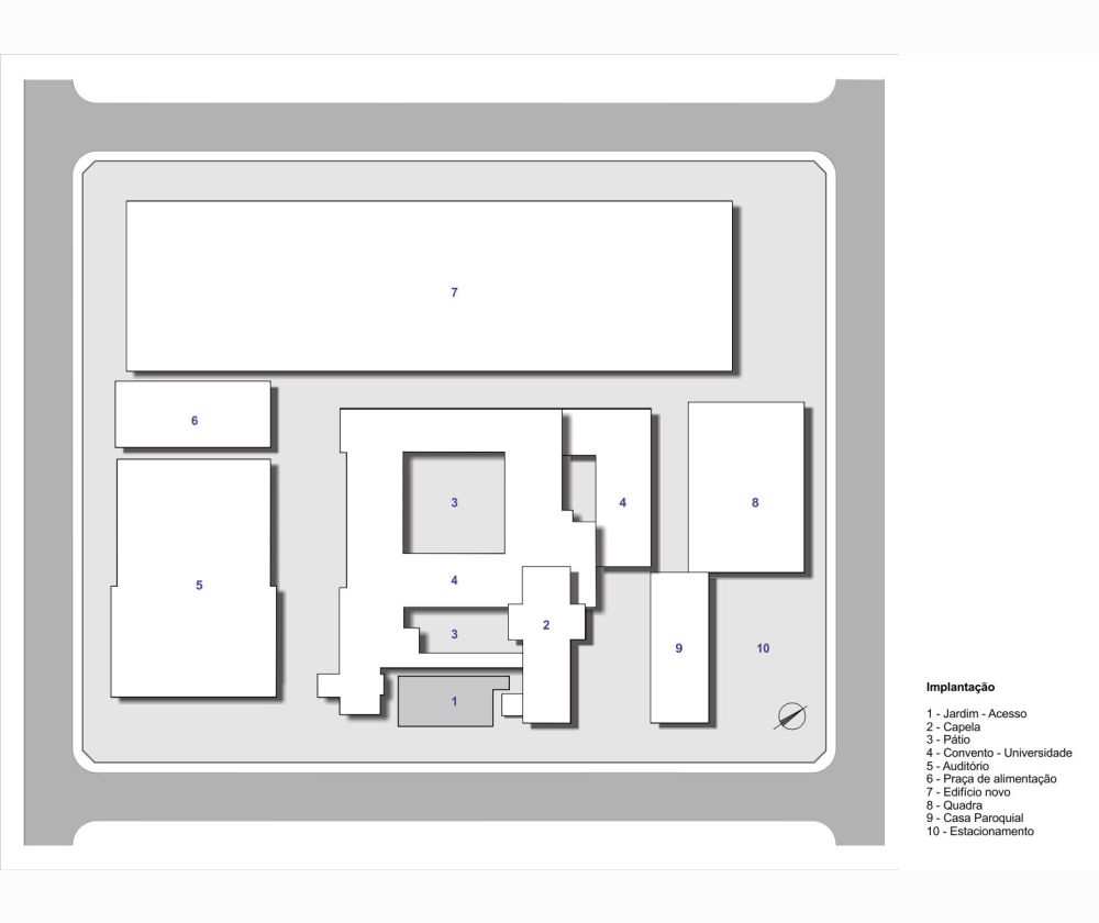
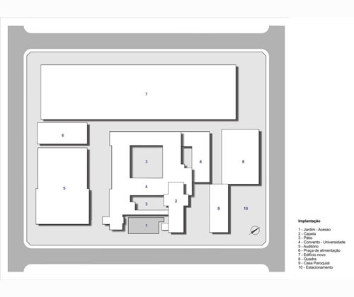
No bairro das Perdizes, em São Paulo, a igreja do Coração Imaculado de Maria, ou Capela da PUC, como é mais conhecida, é sede e matriz da Paróquia Universitária de São Paulo.
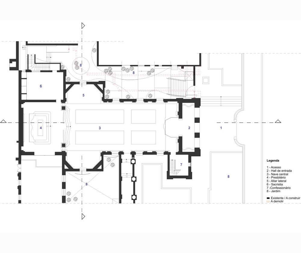
Ao receber a bênção, em 16 de setembro de 1923, a Capela, construída em estilo colonial brasileiro, não estava completamente ornamentada. Em 1936 ficaram prontas as telas pintadas por Pedro Corona, que decoram as paredes laterais com episódios da vida de Santa Teresa de Ávila. Enquanto a capela pertenceu ao convento, seu altar principal tinha a escultura de Santa Teresa de Ávila ao centro, ladeada pelas de São João da Cruz e de Santa Teresinha do Menino Jesus. Os altares laterais tinham São José, de um lado, e Nossa Senhora do Carmo, do outro.
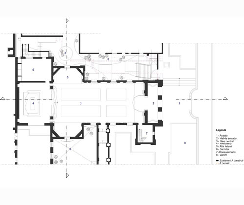
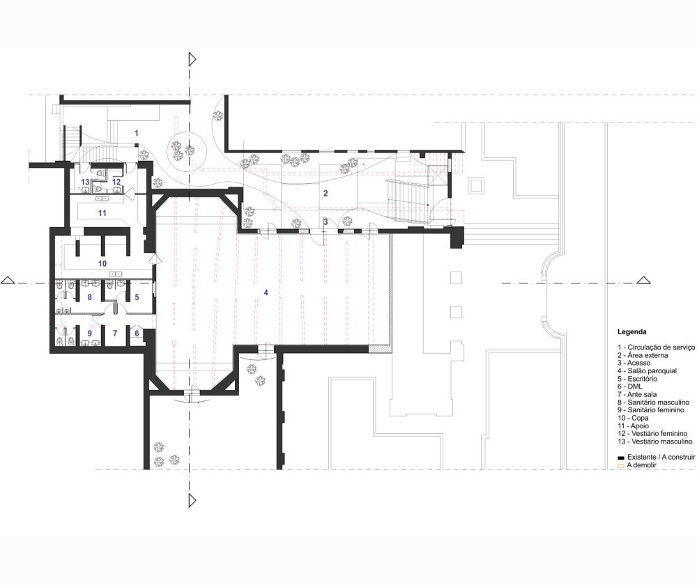
O projeto de restauro da capela contemplou a renovação do telhado, a substituição do sistema elétrico, modernizando-o e dotando-o de condições para receber completo sistema de ar-condicionado e novo sistema de som, exigências dos tradicionais casamentos que são celebrados naquele espaço. Fez parte do trabalho a pintura externa, mas a intervenção mais importante envolve o reforço estrutural e a substituição do piso da capela e com isso a criação de um salão paroquial no subsolo da capela que criará as condições necessárias aos trabalhos religiosos junto à comunidade do bairro e da Universidade.
Como tarefa complementar e fundamental inclui-se o restauro das pinturas decorativas que embelezam todo o conjunto e que foram amplamente danificados por infiltrações provocadas pelas más condições do telhado. O partido final desse restauro prevê a recondução da capela à sua condição inicial, mantendo o estilo, recuperando os itens danificados e modernizando as instalações para melhor atender aos usuários.